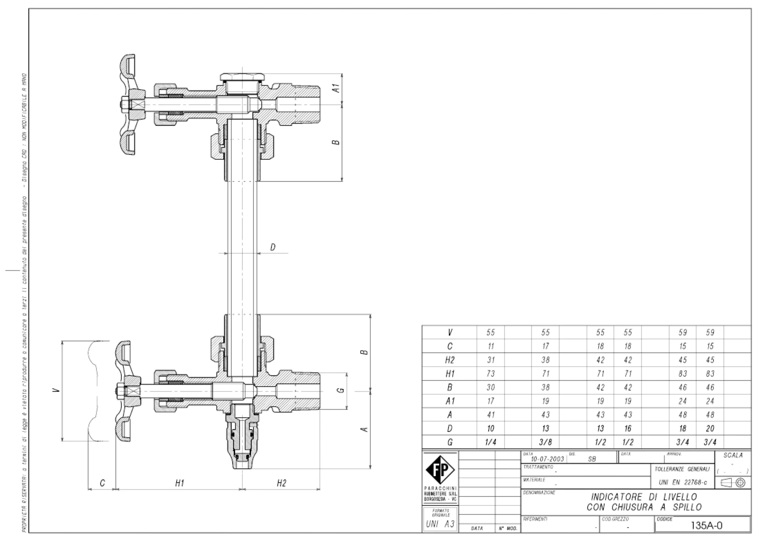
135 - PN 10

Brass needle level gauge recommended for low working pressure tanks.